엘리베이터 피트는 승객용이나 화물용 엘리베이터 등을 설치할 때 1층 아랫부분에 지지 프레임과 완충기가 있는 하단 공간입니다. 승강기 자체 무게와 몇 인승인지와 관계 없이 매트는 구조상으로도 중요한 부위입니다. 따라서 정확히 시공되어야 할 부위로, 일반 엘리베이터 설치를 위한 구조 도면을 간단히 설명하겠습니다.
엘리베이터 설치 피트 공간 시공 시 주의점

- 동결심도(땅이 얼 때 어는 곳과 안어는 곳까지의 경계 깊이)까지 기초가 도달해야 하므로 기초보가 설치되는 경우도 있습니다. 보통 아래쪽으로 현대 엘리베이터 기준 피트가 1150mm 이상 내려가므로 신경 쓸 일은 아니나, 기초보 있는 도면이라면, 그냥 도면대로 시공해야 합니다.
- E/L (승강기) 도면은 항상 최종마감 기준으로 FL(Floor Level)을 고려해 높이를 고려해야 합니다.
- 피트 아래는 지지 프레임을 견고하게 잡아주는 무근콘크리트 타설이 100mm 정도 잡혀 있으므로 그 높이도 고려하세요.
- 피트 시공 깊이를 잘못 계산될 경우 불상사를 대비해 피트를 도면보다 50mm~100mm 등 깊이에 여유를 줘도 무방합니다.
- 본격적인 엘리베이터 설치 공사가 시작 되기 전, 피트 공간과 연결된 1층 조인트 높이 이상은 방수가 되어 있어야 합니다. 비 올 때나 지하수로 인한 누수가 없는지 확인하세요.
- 앞 포스팅에서 언급했지만, 기존 설계 도면보다 승강기 업체 도면 우선입니다.
- 도면에 언급되어 있지 않지만, 매트 타설시 지수판과 지수캡으로 누수 예방에 신경을 쓰세요.
엘리베이터 도면 이해
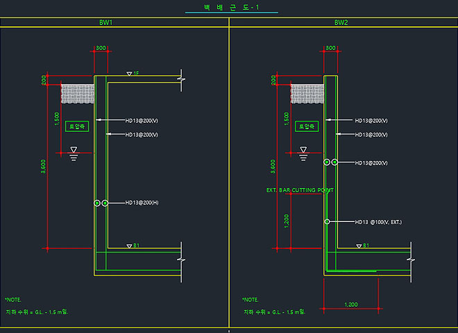
승강기 구조 도면 예시 1

- MAT THK 700 (매트 두께는 700mm입니다)
- S.L -1600 / G.L - 1800 (1층 슬래브에서 아래로 1,600mm, 땅 대지의 레벨에서 아래로 1,800mm에 피트가 위치합니다)
- HD19@200(T&B) (매트 철근 배근은 TOP & BOTTOM , 즉, 위 아래로 200 피치(간격)로 19mm 고장력 이형철근을 배근하라는 의미입니다)
- BW1, BW2는 2종류의 벽체 배근으로 B는 BASEMENT(지하), W는 WALL(벽)을 의미하며, 아래 벽 배근도를 참고하시면 됩니다.

- BW1은 벽체 두께가 300, HD13@200(V), HD13@200(H)로, 괄호안의 V(verticality)는 수직 철근, H(horizontality) 수평 철근을 의미하므로, 수직근은 고장력 13mm 철근을 200mm 간격으로, 수평근은 고장력 13mm 철근을 200mm 간격으로 벽 배근하라는 의미입니다.
- BW2도 위의 방식대로 배근하면 됩니다.
- 현장에서는 수직근을 다대근, 수평근을 요꼬근이나 요꼬낑이라 이릅니다. 계단 수평근도 요코낑이라 부릅니다.
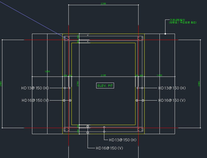
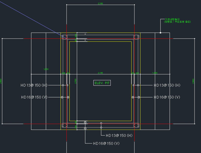
승강기 구조 도면 예시 2

- HD16@150(V)에서 고장력 16mm 철근을 150mm 간격으로 수직 벽 배근 하세요. HD13@200(H)은 고장력 13mm 철근을 150mm 간격으로 수평 벽 배근세요.

- 두께 500mm의 지중보가 있으며, 상부와 하부 고장력 19mm 철근 5가닥씩 주근을 넣으라는 의미입니다. 그리고 중간 부분에 HD13 4점이 있으므로 13mm 철근을 보강하라는 의미입니다.
- STR. HD13@200 은 스터럽(stirrup) 철근, 즉 늑근(전단보강근 또는 사인장철근)은 13mm 철근을 200mm 간격으로 배근하라는 의미입니다. 사실은 단부와 중앙부 배근 간격이 다르나, 특별한 언급이 없으므로, 설계 사무실쪽에 문의를 하거나, 그냥 단부와 중앙부에 관계없이 모두 200피치로 배근합니다.
엘리베이터 설치는 기본 순서와 공정만 이해하시면, 그다지 어려운 시공이 아닙니다. 각 층과 최상층 기계 제어반 설치 부분의 엘리베이터 시공 관련 배근 및 개구부 정보들도 올리겠습니다.
'건축 > 건축구조' 카테고리의 다른 글
| 먹선 작업과 기초 배근 도면 읽기 (0) | 2022.03.19 |
|---|
댓글